Комплект складається з:
- системи інсталяції прихованого монтажу AQUA 50 MECH QF з гарантією тривалого та безпечного використання;
- підвісного унітазу прихованого монтажа Cersanit CASPIA із технологією CleanOn;
- дюропластове, антибактеріальне сидіння SLIM, з плавним закриванням і функцією простого зняття однією кнопкою.
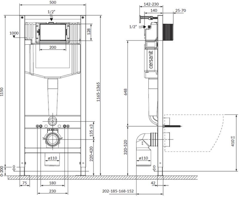
Система інсталяції AQUA 50 MECH QF сухого монтажа, оснащена рядом функціональних рішень, які полегшують і прискорюють монтаж: стопор в ніжках рами, поворотні оцинковані ніжки, регульована система монтажу QUICK FIX, що дозволяє встановлювати виріб в кутку кімнати, дренажне коліно з 4-ступінчатим регулюванням глибини, розмітку метровий маркер для полегшення визначення висоти підвісного унітазу та колірне маркування функціональних елементів системи, для полегшення монтажу рами. Легка установка доповнюється регулюванням внутрішніх механізмів бачка без використання інструментів, а лише модернізованим з'єднувальним шлангом, оснащеним ущільнювальними кільцями, які можна легко затягнути вручну.
Зливний бачок в інсталяційній системі прихованого монтажу виконаний за технологією видувного формування. Такий процес виготовлення дозволяє отримати цільнолитий зливний бачок, що гарантує герметичність та запобігає протіканню.
Можливість регулювання кількості води, що змивається і можливість змінювати динаміку сили викиду води на механічному дренажному клапані, ультратихий наповнювальний клапан з латунним наконечником, зливний бачок захищений пінополістиролом, а також оснащений технологією FRESH SYSTEM - спеціальний резервуар для освіжаючих таблеток, що гарантує підтримання гігієни довше - все це забезпечує найвищу якість роботи системи прихованого монтажу AQUA.
Вибрана механічна кнопка зливу купується окремо.
